With “Hubloom”, we design and deploy prefabricated modular spaces made from circular materials to help cities and communities reactivate underused urban areas and strengthen social life.

Built off-site and installed rapidly, Hubloom modules transform vacant lots, forgotten squares, and transitional sites into vibrant places for community, culture, and local services.

Our approach enables cities to activate spaces immediately while remaining flexible for future development.

1. Fast, flexible and circular

Each Hubloom unit is:

  • made from reused and low-impact materials

  • prefabricated for fast deployment

  • modular and scalable

  • relocatable and reversible

  • adaptable to evolving urban needs

2. Designed for communities

Hubloom modules can host a wide range of uses:

  • community hubs

  • cultural and educational spaces

  • local services and social initiatives

  • workshops, coworking and maker spaces

  • temporary or permanent public infrastructure

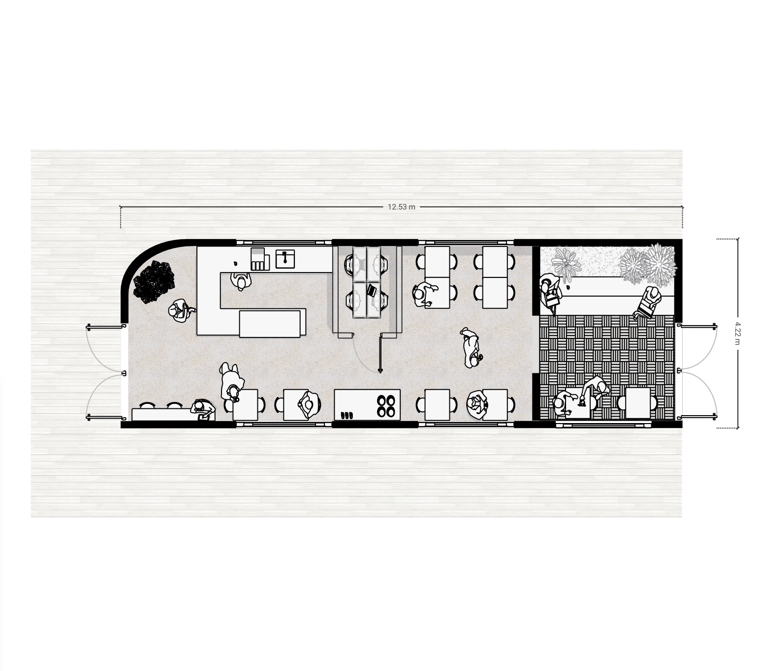
Our modules

Floor plan of a community center or gym with indoor and outdoor spaces, including a lounge, work area, outdoor seating, and organized classes.

A practical tool for cities shaping the future

Hubloom provides municipalities and urban developers with a ready-to-deploy, circular infrastructure to test uses, accelerate regeneration, and create meaningful places where social life can grow.

Let’s build by empathy!